Floor Plans at Park Place Retirement Community

Find the perfect fit for you or someone you love

At Park Place Retirement Community, your home should reflect your lifestyle, and we’ve created just the right spaces to do that. Choose from a variety of well-appointed studio and one-bedroom apartment options, each thoughtfully designed to promote comfort, privacy, and a true sense of belonging.

Our floor plans offer the perfect blend of functionality and charm. With features that support both independence and ease of living, it’s easy to feel right at home from the moment you walk through the door.

Step inside, explore the layouts below, and picture yourself living in a community where neighbors become friends and every detail is designed with you in mind.

Your next chapter starts here—a warm, welcoming home waiting just for you.

Independent Living Floor Plans

Open Studio

Open Studio | Sleeping/Living/Dining | 1 Bath | Kitchenette

Open Studio Deluxe

Open Studio | Two Beds | Living Area | Dining Space | Kitchenette | Bath

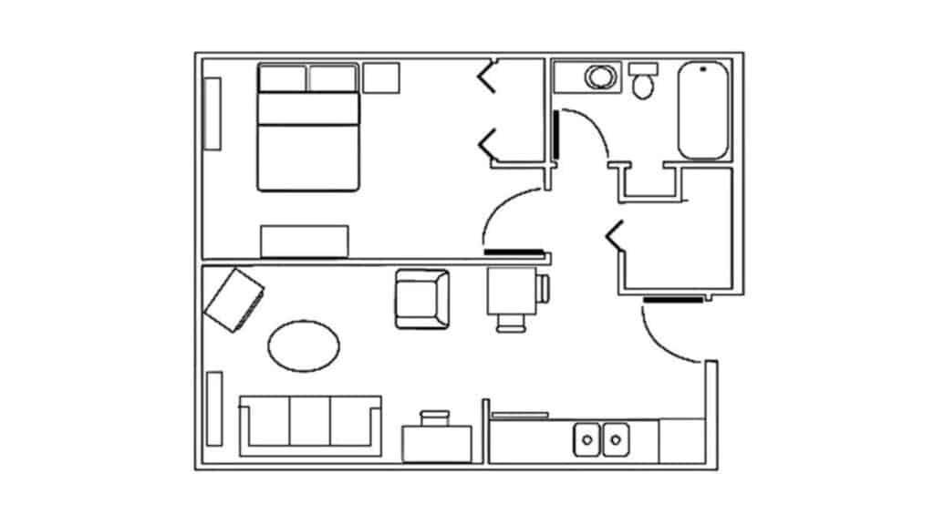
One Bedroom

One-Bedroom | Living Room | Dining Area | Closet | Kitchenette

One Bedroom Deluxe

One-Bedroom | Living Room | Dining Area | Full Kitchen | Bath

Two Bedroom Deluxe

Two-Bedroom | 2 Closets | 1 Bath | Living Room | Dining | Kitchen

Assisted Living Floor Plans

Studio Deluxe

Open Studio | Two Beds | Living Area | Dining Space | Kitchenette | Bath

One Bedroom

One Bedroom | Living Room | Kitchenette | Bath

Services & Amenities to Enhance Every Day

Enjoy all the comforts of home—and so much more. From nutritious meals and weekly housekeeping to engaging activities and transportation, every amenity and service is thoughtfully included to make life simple and worry-free.

As one of the most welcoming Hendersonville retirement communities, Park Place ensures that comfort, convenience, and connection are always part of your everyday experience.

Discover the Park
Place lifestyle

Are you ready to see what makes life at Park Place so welcoming? There’s no better way than scheduling a personal visit. Experience firsthand how our community brings people together through fun, friendship, and unforgettable moments.

Discover the best of senior living in Hendersonville—where every day brings connection, comfort, and something to smile about!